

永恆與一瞬 — The Eternal & The Instant 新成屋 Taichung , Taiwan
永恆與一瞬 — The Eternal & The Instant
新成屋 Taichung , Taiwan
Size 23.5坪
Year 2025
Photography 檐式工作室
Size 23.5 坪
Year 2025
Photography 檐式工作室


在本案中,家不再是房間的集合,而是一個安靜、向內凝聚的空間。設計的核心在於梳理三種截然不同的生活頻率:花藝的瞬時(一瞬)、藏酒的沉澱(永恆),以及家中寵物的自由流動。
In this project, a home is not just a collection of rooms, but a quiet, inward-centered space. The core of the design lies in harmonizing three distinct rhythms of life: the transience of floral arrangement (The Instant), the sedimentation of wine collection (The Eternal), and the fluid movement of the pets.
在本案中,家不再是房間的集合,而是一個安靜、向內凝聚的空間。設計的核心在於梳理三種截然不同的生活頻率:花藝的瞬時(一瞬)、藏酒的沉澱(永恆),以及家中寵物的自由流動。
In this project, a home is not just a collection of rooms, but a quiet, inward-centered space. The core of the design lies in harmonizing three distinct rhythms of life: the transience of floral arrangement (The Instant), the sedimentation of wine collection (The Eternal), and the fluid movement of the pets.




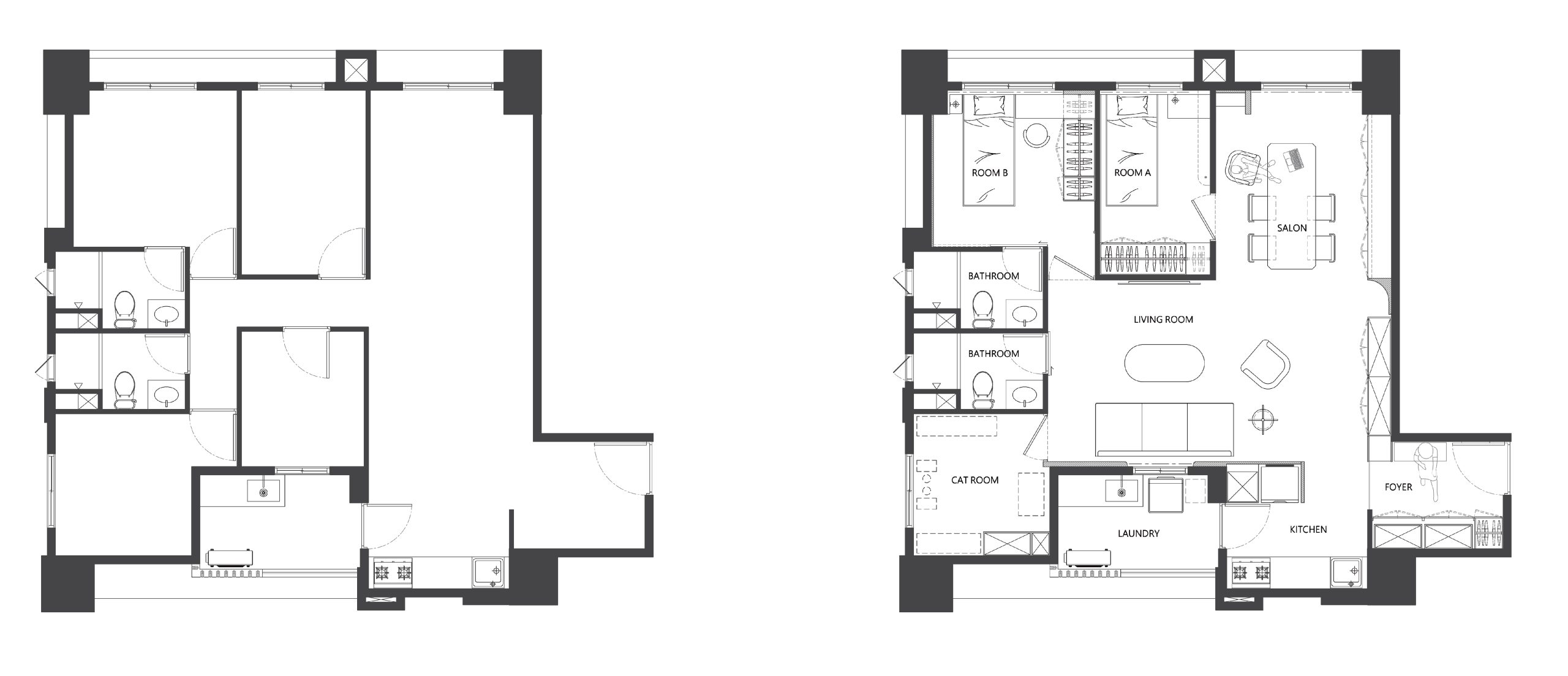
我們重新定義了格局邏輯,將原本的四房調整為三房,消弭閒置走道的阻斷,使機能在開闊的動線中趨於完整。在此基礎下,將「餐廳」設定為整座空間的軸線。即便客、餐、廚保有各自獨立的機能區域,仍以一張寬闊的大長桌作為生活匯聚的中心。
We redefined the spatial logic by reconfiguring the original four-bedroom layout into three, eliminating fragmented corridors to allow functions to unfold seamlessly within an open circulation. Within this framework, the dining area is established as the primary axis, with an expansive table serving as the focal point of daily life.
我們重新定義了格局邏輯,將原本的四房調整為三房,消弭閒置走道的阻斷,使機能在開闊的動線中趨於完整。在此基礎下,將「餐廳」設定為整座空間的軸線。即便客、餐、廚保有各自獨立的機能區域,仍以一張寬闊的大長桌作為生活匯聚的中心。
We redefined the spatial logic by reconfiguring the original four-bedroom layout into three, eliminating fragmented corridors to allow functions to unfold seamlessly within an open circulation. Within this framework, the dining area is established as the primary axis, with an expansive table serving as the focal point of daily life.







以訂製的大長桌作為空間的重心,選用低飽和度、質地純粹的木質,在細節處嵌入一道黃銅。這道金屬細線不僅是工藝細節的收尾,更象徵著時間的延續。
As the gravity of the space, this custom-made table is crafted from pure, low-saturation wood, featuring a precision-inlaid brass line. This metallic detail is more than a refined finishing touch; it symbolizes the continuity of time.
以訂製的大長桌作為空間的重心,選用低飽和度、質地純粹的木質,在細節處嵌入一道黃銅。這道金屬細線不僅是工藝細節的收尾,更象徵著時間的延續。
As the gravity of the space, this custom-made table is crafted from pure, low-saturation wood, featuring a precision-inlaid brass line. This metallic detail is more than a refined finishing touch; it symbolizes the continuity of time.










一瞬 (The Instant) 指向花藝創作,木質桌面作為一塊純淨畫布,承接植物生長、修剪與綻放的動態過程。上方懸吊著非對稱造型的燈飾,以有機曲線與流動光影,為創作過程留下一段餘裕與從容。
Dedicated to floral arrangement, the wooden surface acts as a pristine canvas, capturing the dynamic process of growth, pruning, and blooming. The asymmetrical pendant light above, with its organic curves and fluid shadows, leaves a pocket of poise and ease for the creative process.
一瞬 (The Instant) 指向花藝創作,木質桌面作為一塊純淨畫布,承接植物生長、修剪與綻放的動態過程。上方懸吊著非對稱造型的燈飾,以有機曲線與流動光影,為創作過程留下一段餘裕與從容。
Dedicated to floral arrangement, the wooden surface acts as a pristine canvas, capturing the dynamic process of growth, pruning, and blooming. The asymmetrical pendant light above, with its organic curves and fluid shadows, leaves a pocket of poise and ease for the creative process.




永恆 (The Eternal) 代表著酒藏。當光線透過玻璃的折射,與酒液的琥珀色交織,透過虛實手法的設計,在視覺上成為空間的景深 — 桌面上是隨四季更迭的自然生命,背景則是經時光醞釀的靜謐收藏。
Represents the wine collection. As light refracts through the glass, intermingling with the amber hues of the wine, the interplay of solid and void expands the visual depth: on the table lies the life of changing seasons; in the background, the serene collection aged by time.
永恆 (The Eternal) 代表著酒藏。當光線透過玻璃的折射,與酒液的琥珀色交織,透過虛實手法的設計,在視覺上成為空間的景深 — 桌面上是隨四季更迭的自然生命,背景則是經時光醞釀的靜謐收藏。
Represents the wine collection. As light refracts through the glass, intermingling with the amber hues of the wine, the interplay of solid and void expands the visual depth: on the table lies the life of changing seasons; in the background, the serene collection aged by time.




為了讓格局從封閉單元轉向流動空間,在牆體與門預留了「自由貓洞」,為貓開闢出專屬的室內路徑。打破了門牆的絕對隔離,讓家中的貓能在空間中自由穿梭,構築出人與貓共同生活的美好畫面。
To transition from closed units to a fluid environment, “freedom feline portals” are integrated within walls and doors, carving out dedicated paths for the pets. By breaking the absolute isolation of walls, the feline family members can move freely through the space, composing a beautiful scene of co-existence.
為了讓格局從封閉單元轉向流動空間,在牆體與門預留了「自由貓洞」,為貓開闢出專屬的室內路徑。打破了門牆的絕對隔離,讓家中的貓能在空間中自由穿梭,構築出人與貓共同生活的美好畫面。
To transition from closed units to a fluid environment, “freedom feline portals” are integrated within walls and doors, carving out dedicated paths for the pets. By breaking the absolute isolation of walls, the feline family members can move freely through the space, composing a beautiful scene of co-existence.


因應居住者不同的作息需求,將兩間房分別向餐廳與客廳端靠攏。透過格局的錯落分布,使不同步調的日常作息,仍保有彈性且默契的生活節奏。
To accommodate the residents’ different daily rhythms, the rooms are positioned respectively toward the dining and living areas. Through this staggered layout, varying paces of life maintain a flexible yet harmonious rhythm of existence.
因應居住者不同的作息需求,將兩間房分別向餐廳與客廳端靠攏。透過格局的錯落分布,使不同步調的日常作息,仍保有彈性且默契的生活節奏。
To accommodate the residents’ different daily rhythms, the rooms are positioned respectively toward the dining and living areas. Through this staggered layout, varying paces of life maintain a flexible yet harmonious rhythm of existence.











